Skip to content
Home
Services
Home Plans
Andie
Arelia
Ashton
Beech
Birch
Dahlia
Dahlia II
Dogwood
Dylan
Grand
Heather
Hickory
Hollis
Holly
Juniper
Laurel
Linden II
Magnolia
Modern Cottage
Morning Glory
Oak
Pond
Poplar
Sweetgum
Tristan
Contact Us
Call
Map
Hours
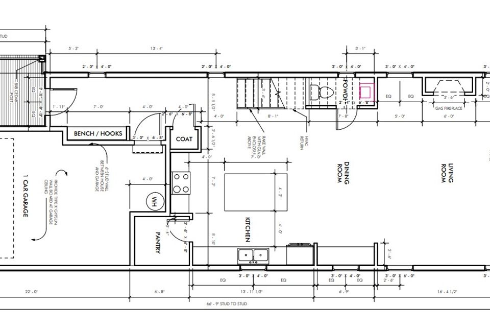
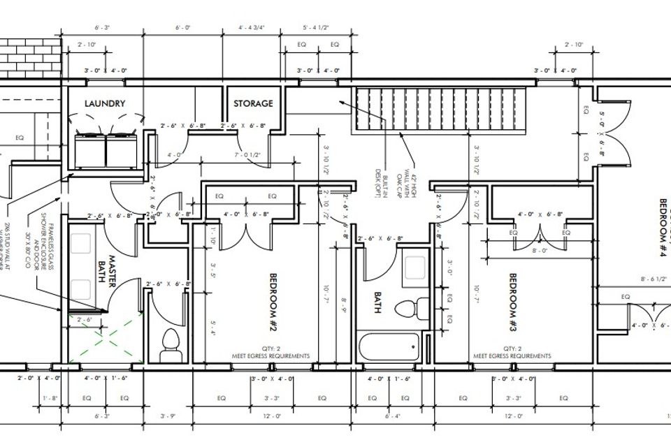
The Modern Cottage